Teaser: Kita + Wohnen mit Nachbarschaftszentrum Detmold

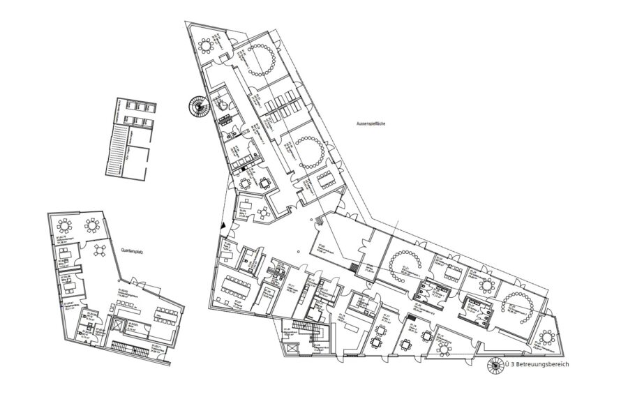
Auf einem Grundstück im ehemaligen Britenviertel plante die Stadt Detmold im Rahmen eines VgV-Verfahrens den Neubau einerviergruppigen Kindertagesstätte (KiTa), mit 19 Sozialwohnungen und ein Nachbarschaftszentrum mit Quartiersmanagement.

Entstanden ist ein kompakter, hybrider Gesamtkomplex aus zwei Bauteilen (Bauteil 1: Kita mit 14 Wohnungen; Bauteil 2: Nachbarschaftszentrum mit fünf Wohnungen).

Die Erschließung der beiden Bauteile erfolgt über einen zentralen Quartiersplatz. Der Platz dient als Bindeglied zwischen den Wegen und Eingängen der Gebäude, erleichtert Querverbindungen und ermöglicht barrierefreie Zugänge.
Die Wohnungen werden über kompakte Erschließungskerne und Laubengängen in den Obergeschossen erschlossen.

Die Baukörper schirmen den Außenspielbereich der Kita, sowie die Schlafräume der Wohnungen vom Straßenlärm durch ihre gewinkelte Form ab und bieten gleichzeitig eine klare zonale Gliederung. Dabei wird eine maximale Orientierung der Innenräume zu den belichteten Außenbereichen durch großzügige bodentiefe Fenster gewährleistet.

Die nutzungsorientierte Raumfolge beschreibt im Erdgeschoss zum einen die Kita mit ihren zentralen Gemeinschafts- und Funktionstrakten, sowie das öffentlich zugängliche Nachbarschaftszentrum mit dem Quartiersmanagement. In den Obergeschossen befnden sich die öffentlich geförderten, teils rollstuhlgerechten Wohnungen.

Die Gebäude wurden in Hybridbauweise (Massivbau + Holzbauelemente) geplant. Dabei ist die Tragstruktur der Erdgeschosse (inkl. Decken, Treppenhauskerne und aussteifenden Wandscheiben) aus Stahlbeton realisiert.
In den Obergeschossen kamen Massivholzwände, Holzrahmenwände und BSP-Geschossdecken zum Einsatz.

Die Fassade besteht aus einer nachhaltigen, hinterlüfteten Lärchenholzfassade, mit verschieden starken Profilgrößen, sodass eine plastische, von Licht und Schatten geprägte Wandfläche entsteht.

Im Inneren wird das Gebäude vom Wechselspiel zwischen sichtbaren Betonwänden und kontrastierenden, warmen Sichtholzwänden geprägt. Große Glasflächen auch in den Wohnungen, sorgen für lichtdurchflutete helle Räume.